8 800 101 22 221111 1
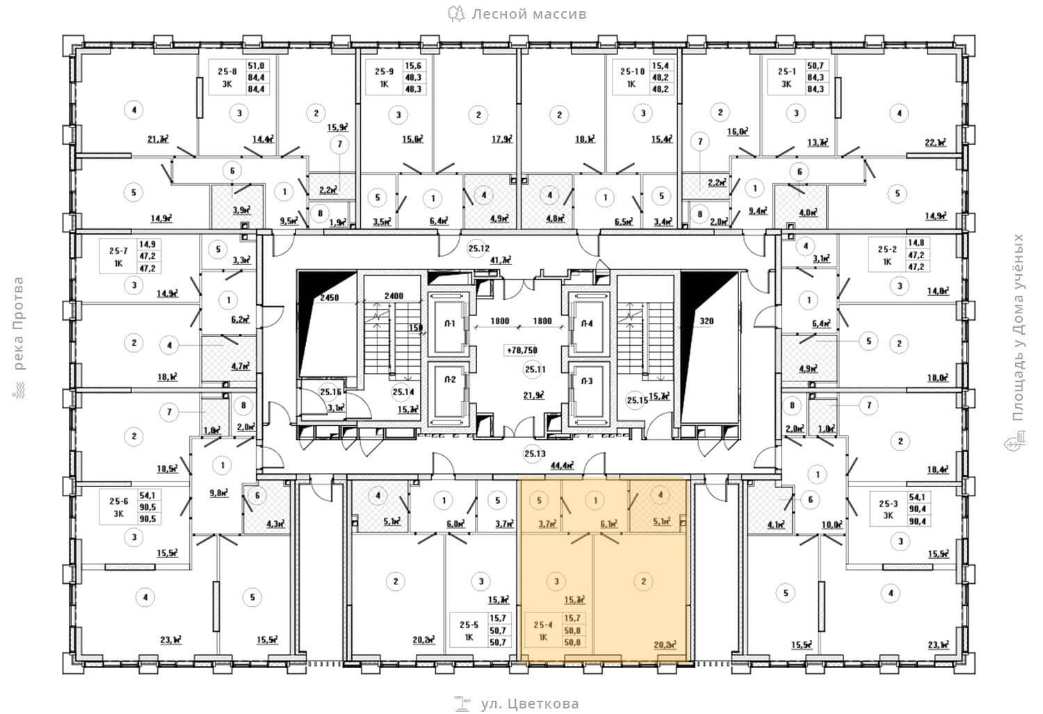
Назад Квартира №4
на этаже: 27
  • площадь: 49.3 м2
  • Этаж: 27 из 30
  • комнат: 1
9 860 000 ₽ 200 000 ₽/м2 в ипотеку от 49 300 ₽/мес
Заказать
обратный звонок
Оставьте ваши контакты, мы с вами свяжемся
Ваша заявка
получена

С вами свяжется наш менеджер
в ближайшее время